下載app免費領取會員
在圖紙上放置視圖時,可以隱藏視圖的某些部分,以專注于某一區域:
使用下列一種或兩種技術:
裁剪區域:使用裁剪區域可將視圖聚焦于建筑模型的某個特定區域。
遮罩區域:使用遮罩區域可隱藏視圖的不相關區域(在矩形裁剪區域內)。
提示: 若要保留視圖的原始版本,請首先創建一個復制視圖。 (在項目瀏覽器中,在視圖名稱上單擊鼠標右鍵,然后單擊“復制視圖”
“復制”。) 打開復制視圖,再根據需要應用裁剪區域和遮罩區域。然后將復制視圖放置到圖紙上。
三維透視視圖。必須在透視視圖上選擇“裁剪視圖”參數,才能將其放置在圖紙上。放置在圖紙上后,將無法針對視圖更改“裁剪視圖”參數。同樣,如果將圖紙上的平行三維視圖更改為透視視圖,則將自動啟用“裁剪視圖”參數。
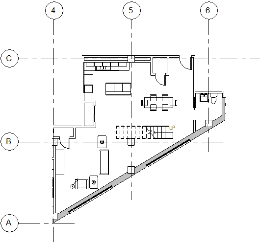
在以下樓層平面中,非矩形裁剪區域隱藏了房間單元右上角和左上角的不相關的模型幾何圖形。


本文版權歸腿腿教學網及原創作者所有,未經授權,謝絕轉載。
下一篇:Revit技巧 | Revit機電樣板步驟:入門機電BIM建模,不知道如何創建樣板?一起進來學習吧!
推薦專題