下載app免費領取會員
來源丨益埃畢教育
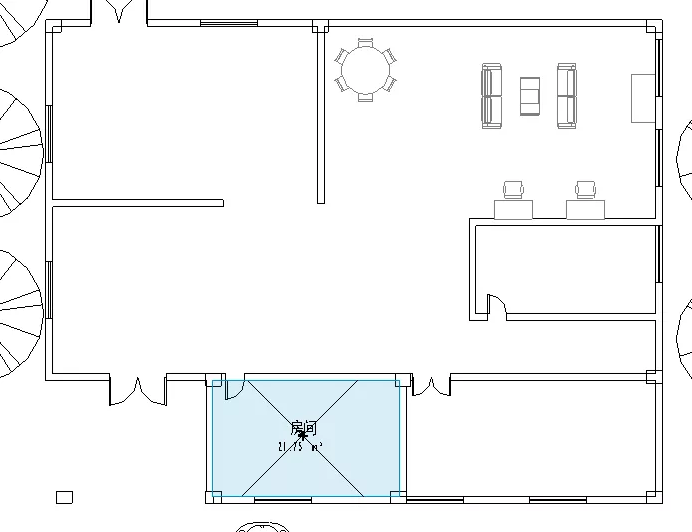
房間命令是Revit中比較實用的一個功能,創建房間時必須是在一個封閉的空間內,但有時會出現明明是封閉的房間卻放置不了的情況,下邊做個案例分享。圖中結構柱為鏈接模型,在默認情況下鏈接模型是不可以作為房間邊界的,所以房間不是封閉的。下面將介紹如何解決這個問題,如圖所示。

01、選中鏈接模型,編輯類型,勾選房間邊界,如圖所示。

02、完成后再次放置房間就可以順利放置了,如圖所示。

意義:在Revit軟件中放置房間或者空間不同類別的構件,不僅可以對名稱進行區分,還可以用于空間的回風量、排風量等進行分析。但實際工程中,建筑和結構模型很多情況下是分開建模的,并且最后通過鏈接的方式進行整合,所以需要通過上文中的方式對模型進行編輯,合理的放置房間、空間,以方便后期進行分析等工作。


-END-
Revit中文網作為國內知名BIM軟件培訓交流平臺,幾十萬Revit軟件愛好者和你一起學習Revit,不僅僅為廣大用戶提供相關BIM軟件下載與相關行業資訊,同時也有部分網絡培訓與在線培訓,歡迎廣大用戶咨詢。
網校包含各類BIM課程320余套,各類學習資源270余種,是目前國內BIM類網校中課程最有深度、涵蓋性最廣、資源最為齊全的網校。網校課程包含Revit、Dynamo、Lumion、Navisworks、Civil 3D等幾十種BIM相關軟件的教學課程,專業涵蓋土建、機電、裝飾、市政、后期、開發等多個領域。
需要更多BIM考試教程或BIM視頻教程,可以咨詢客服獲得更多免費Revit教學視頻。
本文版權歸腿腿教學網及原創作者所有,未經授權,謝絕轉載。
下一篇:CAD教程 | 如何在CAD2024中創建對齊的線性標注
推薦專題