下載app免費領取會員
文章來源:BIM 酷族
我們提到過BIM版房屋使用說明書的制作及上傳流程應注意的問題。濟南市住建局下發的《關于推行BIM版商品住宅使用說明書的通知》中還要求,上傳戶型及公區圖紙,才能提交審核。

圖:房屋使用說明書實施流程
其中,戶型內圖紙主要有戶型建筑平面示意圖;戶型給水管道地面暗敷走向示意圖;戶型衛生間管道及設施示意圖;戶型供暖管道地面暗敷走向示意圖等等;用以輔助說明房屋構造及配置信息。

圖:房屋使用說明書平臺要求提交的戶型圖紙
因此,需要提前準備以上資料。否則會影響到相關資料的提交審核進度。
解決方案:可采取CAD與BIM模型出圖兩種方式實施
1、采用傳統CAD出圖方式
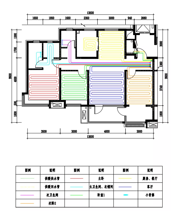
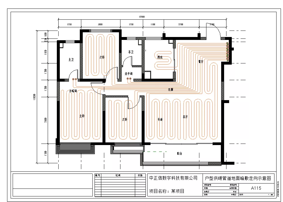
采用CAD出上述戶型圖紙,是成熟的傳統的方式,也被廣大業主所認可。僅以建筑及供暖管道地面暗敷走向示意圖為例予以說明。如下圖所示,建設單位多委托設計單位、施工總承包單位,亦或自行根據施工圖進行繪制。

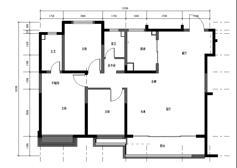
圖:戶型建筑平面示意圖

圖:戶型供暖管道地面暗敷走向示意圖
2、采用BIM出圖方式
眾所周知,BIM具有可出圖性。既然已經完成戶型的BIM模型,可以進一步完成上述出圖任務。

圖:模型建筑樓層平面視圖

圖:戶內照明管線暗敷走向示意圖

圖:組裝戶內照明暗敷線管走向示意圖
同樣的道理,可以完成供暖管道、插座、弱電、新風、給排水等等系統的相關圖紙。

實現技術路線:項目樣板與構件族發揮威力
根據項目實際需求及設計特點,創建項目樣板,包括但不限于如下:
1、構件族的載入及類型創建,需要嚴格按照《通知》中要求進行制作;
2、過濾器的設置;
3、視圖標準及出圖標準的設置,等等;
為此,需要創建滿足出圖具有規范二維表達的構件族。

圖:項目中存在的窗類型及平面表達

圖:各類電氣裝置族
當圈內都在“正向設計”的時候,如果忽略了基礎構件族的創建與積累,恐怕很難湊效。作為戶型交付需要提交的示意圖紙,或許BIM模型出具的相關圖紙能滿足項目交付的要求。數據庫,這就是要做某件事的意義!
Revit中文網作為國內知名BIM軟件培訓交流平臺,幾十萬Revit軟件愛好者和你一起學習Revit,不僅僅為廣大用戶提供相關BIM軟件下載與相關行業資訊,同時也有部分網絡培訓與在線培訓,歡迎廣大用戶咨詢。
網校包含各類BIM課程320余套,各類學習資源270余種,是目前國內BIM類網校中課程最有深度、涵蓋性最廣、資源最為齊全的網校。網校課程包含Revit、Dynamo、Lumion、Navisworks、Civil 3D等幾十種BIM相關軟件的教學課程,專業涵蓋土建、機電、裝飾、市政、后期、開發等多個領域。
需要更多BIM考試教程或BIM視頻教程,可以咨詢客服獲得更多免費Revit教學視頻。
本文版權歸腿腿教學網及原創作者所有,未經授權,謝絕轉載。
下一篇:CAD教程 | 如何使用CAD2023繪制不相交的交叉線圓
推薦專題